2/40 Vanilla Avenue, Griffin
Spacious and Modern Townhouse in a Small Complex of Three


















Description
Welcome to 40 Vanilla Avenue, Griffin a beautifully designed townhouse offering the perfect blend of modern comfort, ample space, and privacy. Located in a private complex of only three townhouses, this property is ideal for families or professionals seeking convenience and style in a prime location
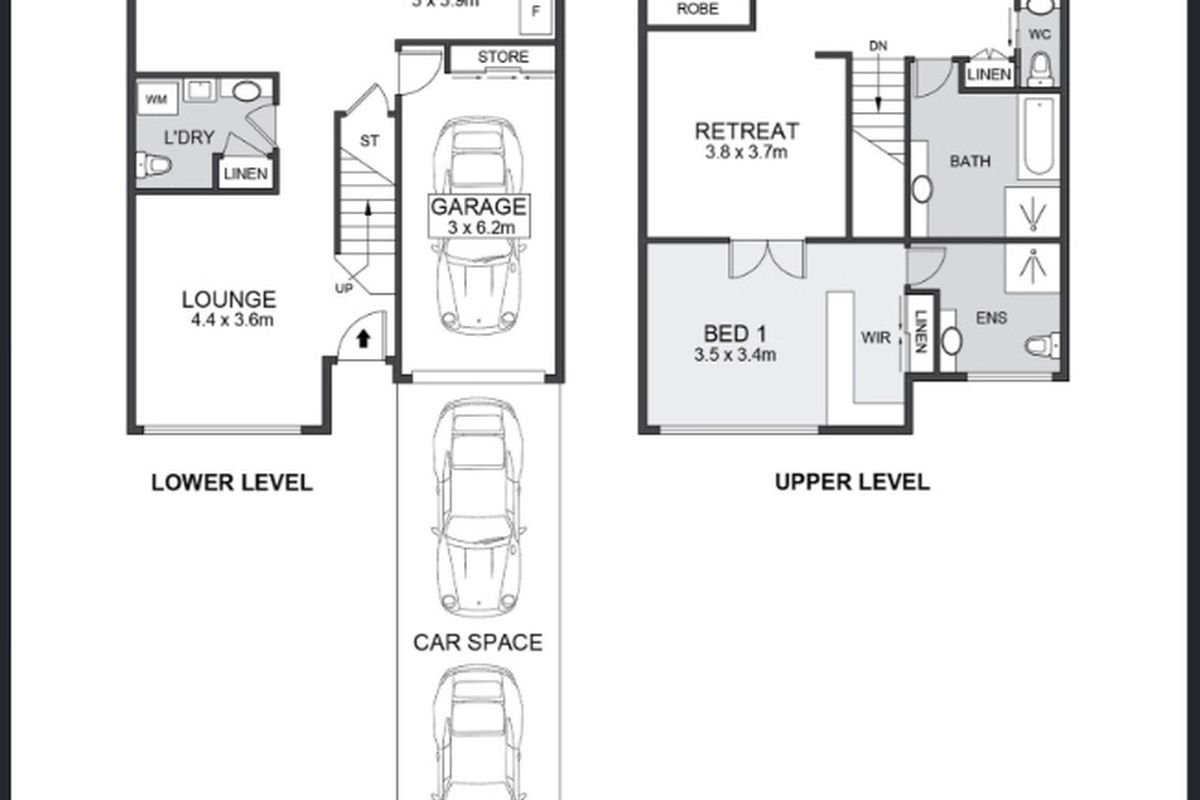
This home features Has a 3000 litre rainwater tank fully plumbed to the toilets and laundry.Secure off-street parking for three cars a rare find in the area! With four separate living spaces, including an upstairs landing area, youll have plenty of room to relax, entertain, or set up a home office. The brand new kitchen is a chef's dream, complete with ample storage, a dishwasher, and an extra-long stone benchtop that serves as a breakfast bar.
Step outside to your private, low-maintenance outdoor area with high ceilings, perfect for alfresco dining and entertaining. The front yard is fully maintained, adding to the property's appeal. Inside, the stylish flooring adds warmth and sophistication throughout. The separate, renovated laundry includes an additional toilet, adding extra convenience to everyday living.
Upstairs, the home offers three generously sized bedrooms, each fitted with ceiling fans. Two of these rooms also feature split-system air conditioning, ensuring comfort year-round. The master bedroom comes with a spacious walk-in closet, while the property features two extra-large, modern bathrooms to cater to a busy household.
Custom sheer block-out blinds throughout the property provide the perfect balance of privacy and natural light. The extra-large staircase adds to the sense of space, leading to the peaceful retreat found on the upper level.
Features at a Glance:
+ Located in a private complex of only three townhouses
+ Fully maintained front yard
+ Secure off-street parking for three cars a rare find
+ Four separate living spaces, including an upstairs landing area
+ Brand new kitchen with ample storage, dishwasher, and extra-long stone benchtop/breakfast bar
+ Stylish flooring throughout the home
+ Private, low-maintenance outdoor area with high ceilings, perfect for alfresco dining
+ Separate, renovated laundry with an additional toilet
+ Three generously sized bedrooms, all with ceiling fans; two with split-system air conditioning
+ Master bedroom featuring a walk-in closet
+ Two extra-large modern bathrooms
+ Custom sheer block-out blinds throughout for privacy and light control
+ Extra-large staircase enhancing the spacious feel of the property
+ Great schools, bus stops, and walkways nearby
This well-designed home offers both functionality and modern style, perfect for those looking for comfort and a peaceful retreat in a convenient location.
Contact us today to arrange an inspection!
Your email address will not be published. Required fields are marked *